نظام تحريك الزجاج المنصهرGlass Stirring System
آلية التحريك عالية الكفاءة المستخدمة في عمليات تصنيع الزجاج المسطّح، والمصمّمة لضمان تكييف الزجاج المصهور وتحقيق تجانس مثالي في خصائصه الفيزيائية والبصرية
في عمليات صهر الزجاج، تؤدي أنظمة التحريك دوراً محورياً في ضمان تجانس الزجاج المصهور قبل دخوله مرحلة التشكيل. فعملية المزج الدقيقة هذه تقلّل من العيوب مثل الخطوط والعروق والفقاعات والمناطق غير المتجانسة، لتُنتج زجاج أكثر صفاءً واستقرار في الجودة. وبناءً على تصميم المصنع ومتطلبات التشغيل، يمكن للمصنّعين اختيار أنظمة التحريك الأفقية التي تمتاز بسهولة الصيانة، أو العمودية التي توفّر المساحة وتناسب البيئات الإنتاجية محدودة المساحة. وفي كلا الحالتين، تضمن هذه الأنظمة الحفاظ على توازن الزجاج المصهور وتجانسه المثالي، ما يعزز كفاءة خط الإنتاج ويضمن الحصول على زجاج عالي النقاء والموثوقية في كل مرة.

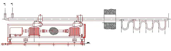
تُستخدم وحدة التحريك الأفقية في عمليات إنتاج الزجاج المسطّح للحفاظ على تجانس الزجاج المصهور من حيث درجة الحرارة والتركيب الكيميائي، حيث يمتد عمود التحريك إلى داخل الفرن، وتتموضع شفراته على عمق يقارب 350 ± 50 مم أسفل سطح الزجاج المصهور. كما يقوم العمود بالدوران لتوليد تيارات دورانية تعمل على توزيع الحرارة بشكل متساوٍ داخل الحوض، ومزج الزجاج بدقة عالية، والمساعدة في إزالة الفقاعات من الكتلة المصهورة. وتؤدي هذه العملية إلى تحقيق تجانس واستقرار أكبر في جودة الزجاج، مما يضمن أداءً موثوقًا في المراحل اللاحقة من التصنيع.
المواصفات الفنية
- سرعة التحريك: من 2 إلى 15 دورة/دقيقة
- عمود التحريك: أفقي الاتجاه، يدور حول المحور المركزي
- عمق الغمر: حوالي 300 مم (قابل للتعديل حسب متطلبات العملية الإنتاجية)
تُستخدم أجهزة التحريك العمودية في أحواض التوزيع – وهي الغرف التي تنقل الزجاج المصهور من الفرن إلى منطقة التشكيل – للمحافظة على استقرار الزجاج وتجانسه قبل دخوله مرحلة التشكيل. وتتكوّن آلية التحريك العمودية من وحدة القيادة المثبّتة أعلى الفرن، والعمود المتحرك مع هيكل الدعم الخاص به، بالإضافة إلى أنظمة التبريد والتحكم. كما تزوّد هذه الوحدات بأدوات تسهّل عمليات التشغيل والصيانة. أما في الجزء السفلي، تتحرك الشفرات خلال الزجاج المصهور لتوليد تدفقات منتظمة تضمن المزج المتكامل للمادة. وتتقاطع هذه التدفقات وتتفاعل فيما بينها، مما يسهم في تحقيق توازن مثالي في درجة الحرارة والتركيب الكيميائي للزجاج، وبالتالي يوفّر للمصنّعين نتائج أكثر ثباتًا وجودة أعلى في المنتج النهائي.
المواصفات الفنية
- سرعة التحريك: من 3 إلى 15 دورة/دقيقة
- عمود التحريك: عمودي، يدور ذاتياً
- عمق الغمر: 185 ± 50 مم (قابل للتعديل حسب متطلبات العملية)
- الوظائف: إمكانية ضبط اتجاه دوران وحدة التحريك بشكل مستقل، كما يمكن تعديل عمق الغمر حسب الحاجة.



